MIN de Lomme
LOmme
- France
Date
2008
-
2012
Maître d'ouvrage
COMMUNAUTE URBAINE LILLE METROPOLE
Architecte
Explorations Architectes
Missions RFR
La mission de RFR inclut la totalité de la structure porteuse de l’ouvrage : charpente métallique, bois, et les fondations.
Description
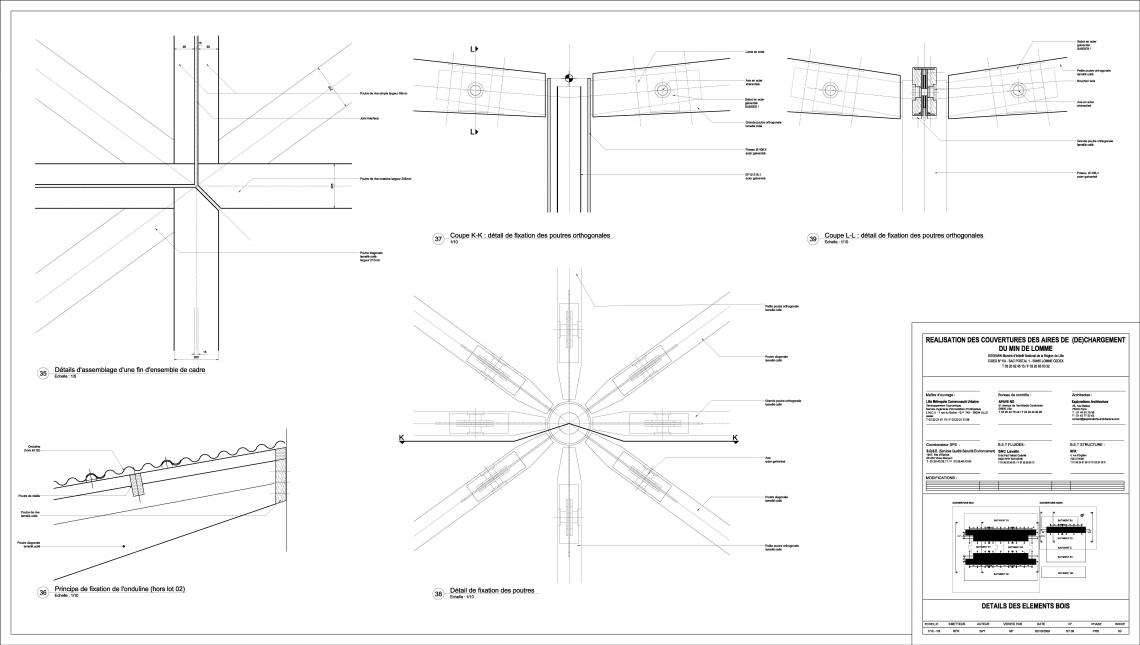
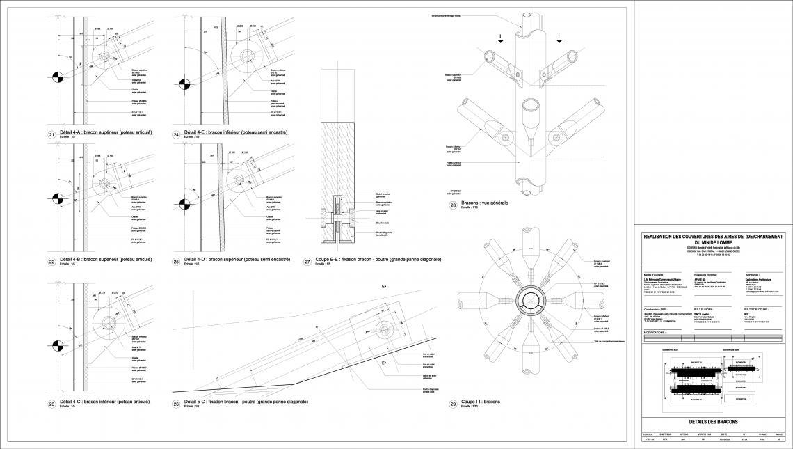
Les structures arborescentes fonctionnent par groupes sous la forme de portiques auto stables dans les deux directions. Cette conception est optimale en termes de trame structurelle car chaque point d’appui supporte un élément de
toiture de 434m2. Cette disposition laisse une surface maximale de stationnement libre de tout obstacle. Les portées réduites permettent de conduire beaucoup plus facilement un montage en site occupé avec des emprises de chantier réduites. La structure en acier galvanisé (fût et branches)
ne nécessite pas de maintenance particulière. Elle est protégée des intempéries directes. La structure en bois lamellé collé et massif de la couverture est également protégée des intempéries directes (pluie battante). Les éléments massifs sont réalisés en bois de classe 3 purgé d’aubier, au sens de la norme.
NF EN 335, et ne nécessitent donc pas de traitement particulier.
toiture de 434m2. Cette disposition laisse une surface maximale de stationnement libre de tout obstacle. Les portées réduites permettent de conduire beaucoup plus facilement un montage en site occupé avec des emprises de chantier réduites. La structure en acier galvanisé (fût et branches)
ne nécessite pas de maintenance particulière. Elle est protégée des intempéries directes. La structure en bois lamellé collé et massif de la couverture est également protégée des intempéries directes (pluie battante). Les éléments massifs sont réalisés en bois de classe 3 purgé d’aubier, au sens de la norme.
NF EN 335, et ne nécessitent donc pas de traitement particulier.
Le MIN de Lomme est le 2e Marché d’Intérêt National en fruits, légumes et fleurs après Rungis. En 2015, il a commercialisé, 182 000 tonnes de marchandises en provenance de France et du monde entier, pour un chiffre d’affaires de plus de 191 millions d’euros. Le projet a consisté à protéger les zones de circulation, stockage et vente situées entre les entrepôts.